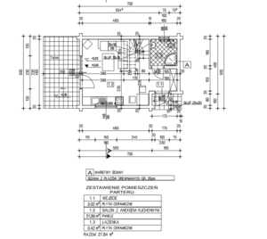
Dom z Bala 5×7 m
Niezwykle klimatyczny dom z płaza o wymiarach 5 x 7 wykonany z bali o przekroju prostokątnym 20 cm.
Jego klasyczna forma nawiązuje do tradycyjnej architektury góralskiej, z wykorzystaniem akcentów góralskich .
Dlaczego warto?
Idealny na zgłoszenie – niewielka powierzchnia zabudowy pozwala na uproszczoną procedurę budowlaną.
Świetny dla małej rodziny – komfortowy, funkcjonalny i przytulny.
Doskonała opcja pod najem krótkoterminowy – góralski klimat i naturalne drewno przyciągają turystów i gości szukających relaksu blisko natury.
Możliwość doposażenia w taras, kominek lub saunę – co zwiększy atrakcyjność inwestycji.
Ten dom to prawdziwa esencja prostoty, funkcjonalności i stylu.
Drewniany klimat, solidne wykonanie i praktyczny rozkład sprawiają, że będzie cieszyć przez lata – niezależnie od tego, czy zamieszkasz w nim na stałe, czy wykorzystasz jako źródło dochodu.
Nasza firma realizuje również budowy domów z półbala oraz bala prostokątnego o grubości 24 cm .





